Telefon:
(0365) 831 00-17
Telefax:
(0365) 831 00-16
info@delta-gera.de
Startseite
Neue Suche
Merkzettel
Kontakt
Impressum
Wohnung in Gera-Zentrum
Ref. Nr.:
699-11-1
Stadt:
Gera
Stadtteil:
Zentrum
Wohnfläche m²:
192
Kaltmiete:
951 EUR
Nebenkosten:
384 EUR
Zimmer:
6
verfügbar ab:
sofort
Kaution:
1902,00
Energieausweis
Beschreibung
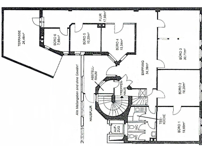
Die knapp 193 m² große und helle Gewerbeeinheit befindet sich im 3. Obergeschoss des ansehnlichen, renovierten Gebäudes der De-Smit-Str. 4. Vielen ist dieses Haus, mit der bemerkenswerten Fassade, als Quisisana bekannt. Mit seinen geräumigen Etagen bietet es, durch die großen Fenster, helle und freundliche Büroräume.
Ausstattung
Büroräume mit Auslegeware (grau/blau) versehen
Wände weiß gestrichen
Einbauküche
Terrasse
Holzfenster
Holztüren mit Glaseinsatz versehen
getrennte WCs für Damen und Herren
Beleuchtung und Netzwerk für Bürokommunikation ist vorhanden
Möglichkeiten für Garderobe und Empfang sind verfügbar
Aufzug im Gebäude vorhanden
Stellplätze am Objekt stehen zur Verfügung
Lage
Kurze Fußwege zur Einkaufsstraße -Sorge-, den Geraer Arcaden, sowie dem Geraer Hauptbahnhof zeichnen die zentrale Lage aus.
Eine Straßenbahnhaltestelle befindet sich direkt vor dem Haus
Die dadurch vorhandene ausgezeichnete Verbindung zu den öffentlichen Verkehrsmitteln ist für alle Berufsgruppen bzw. jeglichen Publikumsverkehr von großem Vorteil.
Sonstiges
Energieausweis ist vorhanden
merken
zurück zur Liste
Interesse
Zwischenverkauf, Irrtümer und Änderungen vorbehalten. Alle Angaben sind unverbindlich.