Telefon:
(0365) 831 00-17
Telefax:
(0365) 831 00-16
info@delta-gera.de
Startseite
Neue Suche
Merkzettel
Kontakt
Impressum
Wohnung in Gera-Zentrum
Ref. Nr.:
700-V
Stadt:
Gera
Stadtteil:
Zentrum
Wohnfläche m²:
343,83
Preis Kauf:
300.000 EUR
Baujahr:
1905
Provision:
3,75 % vom Kaufpreis zzgl. MwSt.
Besonderheit:
vermietet
Energieausweis
Beschreibung
Bei dem Verkaufsobjekt handelt es sich um ein ein 4-geschossiges Mehrfamilienhaus, welches unweit vom Geraer Stadtzentrum entfernt ist. Das Objekt befindet sich in einem guten, gepflegten Zustand. Die Heizungsanlage wurde 2016 erneuert.
Ausstattung
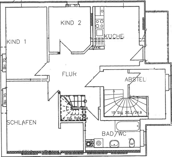
Das zu verkaufende Gebäude ist bis auf das Gewerbe im Souterain vollständig vermietet und die 5 Einheiten teilen sich wie folgt auf:
Souterain: Gewerbeeinheit 38,78 m² 200,00 EUR Kaltmiete
Hochparterre: 3-Raum Wohnung 66,83 m² 334,00 EUR Kaltmiete
1. OG: 3-Raum Wohnung 73,37 m² 385,00 EUR Kaltmiete
2. OG: 3-Raum Wohnung 72,85 m² 360,00 EUR Kaltmiete
3. OG / DG: 4-Raum Wohnung 92,00 m² 598,00 EUR Kaltmiete
Carport: Mieteinnehmen 75,00 EUR
Die Pläne und Größenangaben beziehen sich auf die vom Eigentümer erhaltenen Unterlagen und sind demzufolge ohne Gewähr.
Sonstiges
Besichtigungen sind nach Terminabsprache mit uns möglich.
merken
zurück zur Liste
Interesse
Zwischenverkauf, Irrtümer und Änderungen vorbehalten. Alle Angaben sind unverbindlich.